Home  |  Hausdaten  |  Zeitschiene  |  Tagebuch  |  Fazit  |  Gästebuch  |  Links   |  Kontakt

Bautagebuch


Informationen rundum unser Bauvorhaben

Hausdaten


Aktionshaus A04


4 Zimmer, Küche, Bad, Gäste-WC, Diele, Hausanschlussraum

Wohnfläche : ca. 122 m²

Putzfassade

Alle Dachneigungen 45°

56cm Drempel

Friesengiebel


Hausansichten

 

 

  
Ansicht Front Ansicht Hinten
  
Ansicht Nord Ansicht Süd

 

 

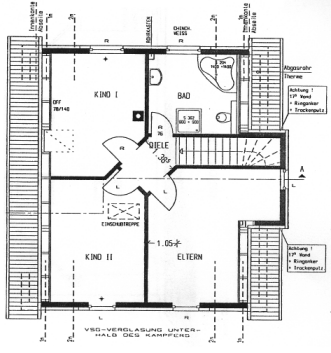
Raumaufteilungen

 

 

  
Erdgeschoss Obergeschoss

 

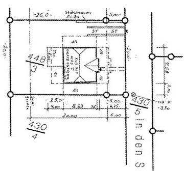
Lagepläne

 

 

 

© 2002-2004 www.die-kirchs.de